Wintersemester 2017 | Bachelorthesis
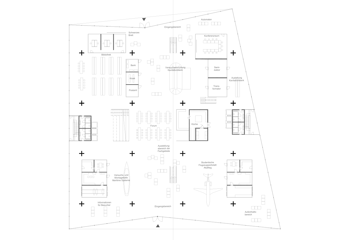
Auf dem Teilgrundstück zum Salzufer soll ein multifunktionales Gebäude entstehen, das neben universitären Lern-, Lehr- und Versuchsräumen, Räume zum Wohnen und Arbeiten anbietet. Hierzu können der im Flachbau (Gebäude 4.2 und 4.4) bestehende Umlauftank und der Tiefwassertank entweder in den Neubau integriert werden oder diese werden an einen anderen Ort auf dem Grundstück ausgelagert, sodass an der städtebaulich prominenten Stelle zum Salzufer hin alternative Lehr- und Lernräume angeboten werden können.
Zu beachten gilt, dass die neue Eingangssituation zum TU Campus Salzufer eine representative Ausstrahlung bekommt, die den ‚neuen‘ Standort der TU gebührend markiert und seine Inhalte widerspiegelt. Darüber hinausgehend sollen auf diesem Grundstück auch weitere architektonisch wegweisende und hochwertige Institutsräume geschaffen werden. Um einen kommunikativen, öffentlichen Ort zu schaffen, an dem sich Wissenschaft und Kiez treffen und sich die Wissenschaftler und die Studierenden mit den Bewohnern des umliegenden Quartiers austauschen können, kann beispielsweise ein öffentliches Cafe ́ integriert werden, das zum Verweilen einlädt und das sich die neu zu planenden Freiraumqualitäten des neuen Campus zunutze macht. Die unmittelbare Lage direkt am Landwehrkanal stellt hier ein enormes potential dar.
Neben dem Raumangebot für öffentliche und universitäre Funktionen, soll auch ein neues Gästehaus für die TU Berlin entworfen werden. Hierfür gilt es innovativen Wohnraum zu schaffen, der den modernen Ansprüchen der neuen ‚Stadtnormaden‘ mit einer Verweildauer von einer Woche bis zu einem Jahr gerecht wird. Gesucht sind transitorische Wohnformen, die sich zwischen abgeschlossener Wohnung und WG zuordnen lassen und die durch die Integration kollektiver Räume neu gedacht und definiert werden sollen. Das Wohnen selbst wird hier zum Gegenstand der Forschung.













A. Hommerich
N. Konrad & J. Ratsch
S. Gubernatis & S. Yeboa
N. Konrad & J. Ratsch
A. Hommerich
S. Gubernatis & S. Yeboa
S. Gubernatis & S. Yeboa
S. Gubernatis & S. Yeboa
S. Gubernatis & S. Yeboa
A. Hommerich
A. Hommerich
N. Konrad & J. Ratsch
N. Konrad & J. Ratsch
Wintersemester 2017 | Bachelorthesis
Auf dem Teilgrundstück zum Salzufer soll ein multifunktionales Gebäude entstehen, das neben universitären Lern-, Lehr- und Versuchsräumen, Räume zum Wohnen und Arbeiten anbietet. Hierzu können der im Flachbau (Gebäude 4.2 und 4.4) bestehende Umlauftank und der Tiefwassertank entweder in den Neubau integriert werden oder diese werden an einen anderen Ort auf dem Grundstück ausgelagert, sodass an der städtebaulich prominenten Stelle zum Salzufer hin alternative Lehr- und Lernräume angeboten werden können.
Zu beachten gilt, dass die neue Eingangssituation zum TU Campus Salzufer eine representative Ausstrahlung bekommt, die den ‚neuen‘ Standort der TU gebührend markiert und seine Inhalte widerspiegelt. Darüber hinausgehend sollen auf diesem Grundstück auch weitere architektonisch wegweisende und hochwertige Institutsräume geschaffen werden. Um einen kommunikativen, öffentlichen Ort zu schaffen, an dem sich Wissenschaft und Kiez treffen und sich die Wissenschaftler und die Studierenden mit den Bewohnern des umliegenden Quartiers austauschen können, kann beispielsweise ein öffentliches Cafe ́ integriert werden, das zum Verweilen einlädt und das sich die neu zu planenden Freiraumqualitäten des neuen Campus zunutze macht. Die unmittelbare Lage direkt am Landwehrkanal stellt hier ein enormes potential dar.
Neben dem Raumangebot für öffentliche und universitäre Funktionen, soll auch ein neues Gästehaus für die TU Berlin entworfen werden. Hierfür gilt es innovativen Wohnraum zu schaffen, der den modernen Ansprüchen der neuen ‚Stadtnormaden‘ mit einer Verweildauer von einer Woche bis zu einem Jahr gerecht wird. Gesucht sind transitorische Wohnformen, die sich zwischen abgeschlossener Wohnung und WG zuordnen lassen und die durch die Integration kollektiver Räume neu gedacht und definiert werden sollen. Das Wohnen selbst wird hier zum Gegenstand der Forschung.













A. Hommerich
N. Konrad & J. Ratsch
S. Gubernatis & S. Yeboa
N. Konrad & J. Ratsch
A. Hommerich
S. Gubernatis & S. Yeboa
S. Gubernatis & S. Yeboa
S. Gubernatis & S. Yeboa
S. Gubernatis & S. Yeboa
A. Hommerich
A. Hommerich
N. Konrad & J. Ratsch
N. Konrad & J. Ratsch