Cornelius Menzel | Masterthesis
Innovations- und Kompetenzzentrum für Baustoffrecycling Westhafen
Boden ist die wertvollste Ressource der Stadt. Um diese sinnvoll zu nutzen, kurze Wege und eine effiziente Infrastruktur im Gebäude zu gewährleisten, gliedert sich der Entwurf durch kompaktes Stapeln in zwei Gebäudeteile. Einen Turm mit administrativen und repräsentativen Funktionen sowie einem Riegel mit Forschung, Wetter-geschütztem Depot und Materialaufbereitung. Die dadurch eingesparte Fläche bietet viel Platz für andere wichtige Aufgaben. Zum Beispiel eine großzügige Renaturierungsfläche mit Schnellholzgewächsen wie Birken,
welche nicht nur den CO2-Abdruck des Hafens verringert, sondern auch seinen Feinstaub filtert, heimischen Tier- und Pflanzenarten Unterschlupf gewährt, sowie repräsentativ die nachhaltige und ökologische Gesinnung unterstreicht. Das entstehende Holz kann alsbald zu rezyklierbaren Baumaterialien verarbeitet werden.
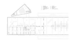
Die jeweiligen Haupteingänge des INKORE-Berlin befinden sich einladend an einem überdachten Vorplatz auf dem Grundstück Beusselstr. 44. Die Anlieferung per LKW etc. erfolgt sauber getrennt über die Westhafenstraße. Nach dem Wiegen können die LKW’s die Materialien ins Außendepot fahren oder entladen sie direkt über die Laderampe der jeweiligen Materialaufbereitung oder in die Wettergeschützten Depotflächen. Dieser Abschnitt liegt unterhalb des Riegels auf Hafenkanten Niveau, ist überdacht und intelligente, ferngesteuerte Laufkräne ermöglichen eine direkte und schnelle Entladung auch größerer Bauschuttmassen. Über Förderbänder und/oder Bagger gelangen die
Recyclingprodukte direkt nach der Aufbereitung in das offene Depot auf der anderen Seite oder das wettergeschützte Depot im oberen Geschoss des Riegels, welches ebenfalls durch zwei Große Rampen erschlossen werden kann und gleichzeitig, wie ein wertvoller ‚Schatz‘ über dem Hafengelände schwebt. Von der Beusselstraße aus kann man unter dem Riegel auf das Hafengelände hindurchschauen, da dieser 12m über dem Hafenkanten Nieveau “schwebt”. Die Depotflächen und die komplette Materialaufbereitung sind ihrer Länge nach für vorbeilaufende Passanten einsehbar, wie eine Schaubühne.
Der untere Teil ist aufgrund der hohen Beanspruchung der Aufbereitungsmaschienen und des Aufprallschutzes aus Recyclingbeton gefertigt. Die Konstruktion der oberen, 36m breiten Leichtbauhalle ist aus Massiv- und Brettschichtholz gefertigt. Hierfür wird Lärche bevorzugt, da diese ohne chemische Behandlung auskommt und über Zeit eine silber-grau schimmernde Schutzpatina entwickelt. Die aneinander gelehnten Holzrahmen-Zweifeld-Träger
bilden zwei lange, parallele Hallen, in denen Laufkräne über die gesamte Länge von 210m operieren können.
Sie können in der Forschungs- und Testhalle verwendet werden sowie dienen sie zum Be- und Entladen von
Transportern. Durch ein Weglassen der Decke im Teil zum Wasser hin, können sogar Güterwagons und Schiffe, mit hilfe der Laufkräne wettergeschützt be- und entladen werden.
Die Fassade wird mit 100% rezyklierbaren, leicht dämmenden, gezackten Polykarbonat Platten versehen.
Text von Cornelius Menzel











Cornelius Menzel | Masterthesis
Innovations- und Kompetenzzentrum für Baustoffrecycling Westhafen
Boden ist die wertvollste Ressource der Stadt. Um diese sinnvoll zu nutzen, kurze Wege und eine effiziente Infrastruktur im Gebäude zu gewährleisten, gliedert sich der Entwurf durch kompaktes Stapeln in zwei Gebäudeteile. Einen Turm mit administrativen und repräsentativen Funktionen sowie einem Riegel mit Forschung, Wetter-geschütztem Depot und Materialaufbereitung. Die dadurch eingesparte Fläche bietet viel Platz für andere wichtige Aufgaben. Zum Beispiel eine großzügige Renaturierungsfläche mit Schnellholzgewächsen wie Birken,
welche nicht nur den CO2-Abdruck des Hafens verringert, sondern auch seinen Feinstaub filtert, heimischen Tier- und Pflanzenarten Unterschlupf gewährt, sowie repräsentativ die nachhaltige und ökologische Gesinnung unterstreicht. Das entstehende Holz kann alsbald zu rezyklierbaren Baumaterialien verarbeitet werden.
Die jeweiligen Haupteingänge des INKORE-Berlin befinden sich einladend an einem überdachten Vorplatz auf dem Grundstück Beusselstr. 44. Die Anlieferung per LKW etc. erfolgt sauber getrennt über die Westhafenstraße. Nach dem Wiegen können die LKW’s die Materialien ins Außendepot fahren oder entladen sie direkt über die Laderampe der jeweiligen Materialaufbereitung oder in die Wettergeschützten Depotflächen. Dieser Abschnitt liegt unterhalb des Riegels auf Hafenkanten Niveau, ist überdacht und intelligente, ferngesteuerte Laufkräne ermöglichen eine direkte und schnelle Entladung auch größerer Bauschuttmassen. Über Förderbänder und/oder Bagger gelangen die
Recyclingprodukte direkt nach der Aufbereitung in das offene Depot auf der anderen Seite oder das wettergeschützte Depot im oberen Geschoss des Riegels, welches ebenfalls durch zwei Große Rampen erschlossen werden kann und gleichzeitig, wie ein wertvoller ‚Schatz‘ über dem Hafengelände schwebt. Von der Beusselstraße aus kann man unter dem Riegel auf das Hafengelände hindurchschauen, da dieser 12m über dem Hafenkanten Nieveau “schwebt”. Die Depotflächen und die komplette Materialaufbereitung sind ihrer Länge nach für vorbeilaufende Passanten einsehbar, wie eine Schaubühne.
Der untere Teil ist aufgrund der hohen Beanspruchung der Aufbereitungsmaschienen und des Aufprallschutzes aus Recyclingbeton gefertigt. Die Konstruktion der oberen, 36m breiten Leichtbauhalle ist aus Massiv- und Brettschichtholz gefertigt. Hierfür wird Lärche bevorzugt, da diese ohne chemische Behandlung auskommt und über Zeit eine silber-grau schimmernde Schutzpatina entwickelt. Die aneinander gelehnten Holzrahmen-Zweifeld-Träger
bilden zwei lange, parallele Hallen, in denen Laufkräne über die gesamte Länge von 210m operieren können.
Sie können in der Forschungs- und Testhalle verwendet werden sowie dienen sie zum Be- und Entladen von
Transportern. Durch ein Weglassen der Decke im Teil zum Wasser hin, können sogar Güterwagons und Schiffe, mit hilfe der Laufkräne wettergeschützt be- und entladen werden.
Die Fassade wird mit 100% rezyklierbaren, leicht dämmenden, gezackten Polykarbonat Platten versehen.
Text von Cornelius Menzel










